Balkon francuski profil profil natynkowy 110cm z eleganckim szlifowanym wykończeniem
Szukasz eleganckiego balkonu francuskiego z satynowym wykończeniem? Nasz profil natynkowy szlifowany 110cm to idealne rozwiązanie dla nowoczesnych i klasycznych elewacji. Szlachetne, szlifowane wykończenie nadaje balustradzie ekskluzywny wygląd, a montaż na licu muru podkreśla minimalistyczny charakter Twojej przestrzeni.
Dlaczego warto wybrać balkon francuski profil natynkowy szlifowany?
- Eleganckie szlifowane wykończenie - satynowa powierzchnia o ponadczasowym designie
- Uniwersalny wygląd - pasuje zarówno do nowoczesnych, jak i klasycznych elewacji
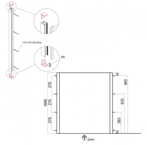
- Łatwy montaż na licu muru - bez ingerencji w konstrukcję okna
- Najwyższa jakość aluminium - gwarancja trwałości i odporności na korozję
- Kompletny zestaw montażowy - wszystko, czego potrzebujesz do instalacji
Specyfikacja techniczna – balustrada francuska profil natynkowy 110 cm
- Długość profilu: 110 cm - idealna do standardowych portfenetrów
- Materiał: aluminium – odporne na korozję i uszkodzenia mechaniczne
- Wykończenie: szlif satynowy - elegancki, nowoczesny wygląd
- Szkło kompatybilne: 10,76–21,52 mm VSG/ESG – uniwersalne zastosowanie
- Normy bezpieczeństwa: zgodność z PN-EN dla balustrad o wysokości 120 cm









